Wij staan voor je klaar: +32 3 360 85 30 / hallo@onevastgoed.be
3 slaapkamers
1 badkamer
1.616 m² grondopp.
Bent u op zoek naar de ideale combinatie van werk en wonen in het Waasland? Dan is dit handelshuis met woonst in Moerbeke nabij de Moervaart misschien de geschikte locatie voor u.
Indeling:
Het handelsgedeelte (409m²) bestaat beneden uit de kantoorruimte met aparte ingang, de winkel met toonzaal en toilet, een ruime garage en op de eerste verdieping nog een uitgebreide opslagplaats.
In het woongedeelte (200m²) geeft de inkomhal toegang tot het toilet, de kelder, de kantoorruimte en de lichtrijke woonkamer. Van hieruit heeft u een mooi zicht naar de bloementuin. Verder is er nog de ingerichte keuken en wasplaats met toegang naar het terras. Op de eerste verdieping zijn er de 3 ruime slaapkamers en de badkamer met ligbad, douche, toilet en wastafel enkel in meubel. Tenslotte is er nog een ruime zolderverdieping met tal van mogelijkheden.
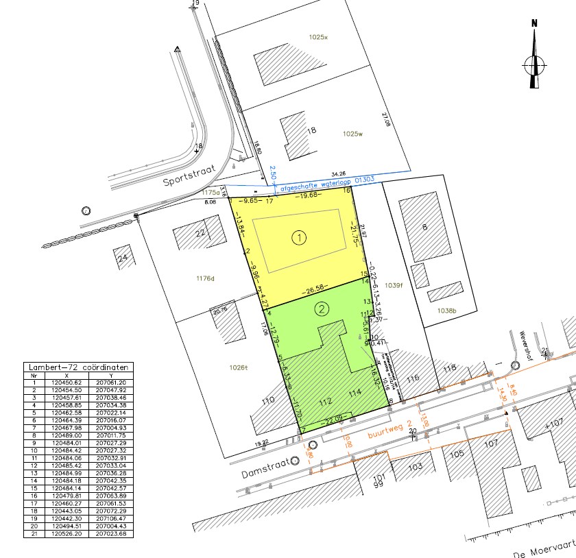
De tuin achteraan (toegang Sportstraat) werd reeds verkaveld.
Troeven:
- rustig gelegen nabij de Moervaart
- gunstige EPC scores (label B voor handel, label C voor woonst)
- overname aandelen mogelijk
- verkavelde bouwgrond inbegrepen
Heeft u interesse in deze eigendom en wenst u meer informatie? Neem dan contact op met ons kantoor op 03 360 85 30.
Indeling:
Het handelsgedeelte (409m²) bestaat beneden uit de kantoorruimte met aparte ingang, de winkel met toonzaal en toilet, een ruime garage en op de eerste verdieping nog een uitgebreide opslagplaats.
In het woongedeelte (200m²) geeft de inkomhal toegang tot het toilet, de kelder, de kantoorruimte en de lichtrijke woonkamer. Van hieruit heeft u een mooi zicht naar de bloementuin. Verder is er nog de ingerichte keuken en wasplaats met toegang naar het terras. Op de eerste verdieping zijn er de 3 ruime slaapkamers en de badkamer met ligbad, douche, toilet en wastafel enkel in meubel. Tenslotte is er nog een ruime zolderverdieping met tal van mogelijkheden.
De tuin achteraan (toegang Sportstraat) werd reeds verkaveld.
Troeven:
- rustig gelegen nabij de Moervaart
- gunstige EPC scores (label B voor handel, label C voor woonst)
- overname aandelen mogelijk
- verkavelde bouwgrond inbegrepen
Heeft u interesse in deze eigendom en wenst u meer informatie? Neem dan contact op met ons kantoor op 03 360 85 30.
| Bebouwing |
Half open bebouwing
|
|---|---|
| Algemene staat |
Instapklaar
|
| Beschikbaar |
In overleg
|
| Oriëntatie tuin |
Noord
|
|---|---|
| Elektriciteitscertificaat |
Ja, Niet conform
|
| Totale opp. grond |
1.616 m²
|
|---|
| Breedte grond |
22,09 m
|
|---|
|
niet conform
|
| Aardgas |
Ja
|
|---|---|
| Elektriciteit |
Ja
|
| Internet |
Ja
|
| Riolering |
Ja
|
|---|---|
| Telefoon |
Ja
|
| Zonnepanelen |
Ja
|
| EPC |
275 kWh/m2/jaar
|
|---|---|
| Totale EPC |
275 kWh/jaar
|
| EPC ref. |
20240216-0003145225-RES-1
|
|---|---|
| Label |
|
Gelijkvloers
Woonkamer 60 m²
Keuken 14 m²
Badkamer
3x
Slaapkamer
2x
Wc
Terras 30 m²
Garage 32 m²
Kelder 8 m²
Tuin
| Prijs |
€ 695.000
|
|---|---|
| KI (niet geïndexeerd) |
€ 1.482
|
Ruimtelijke ordening
| Verkavelingsvergunning |
Niet ingegeven
|
|---|---|
| Voorkooprecht |
Neen
|
| Beschermd erfgoed |
Neen
|
| Geïnventariseerd erfgoed |
Geen beschermd erfgoed
|
| Renovatieplicht |
Nee
|
Op zoek naar een nieuwe thuis?
Registreer jouw zoekwensen en blijf op de hoogte van ons nieuw aanbod. Wij mailen enkel wat interessant is voor jou.
Wij helpen je zoeken!